
River Run — Brentwood, NH
February 20, 2026
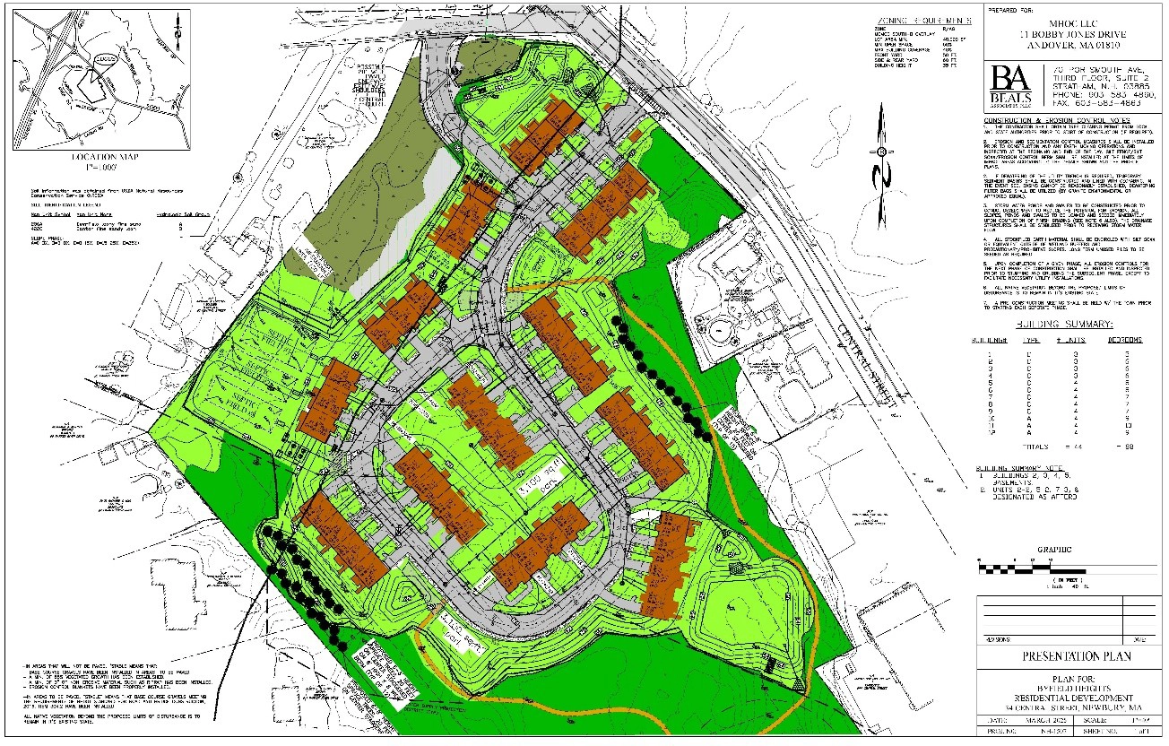
Residential development consisting of 44 townhome units on a 10.0+/–acre parcel of land located on Central Street in Newbury, Massachusetts.


River Run — Brentwood, NH
February 20, 2026
Residential development consisting of 44 townhome units on a 10.0+/–acre parcel of land located on Central Street in Newbury, Massachusetts.
